Hosted by the ICAA Southern California Chapter | 5 Credits toward the Certificate in Classical Architecture (Ionic Order) | 5 AIA CES Learning Units|Elective
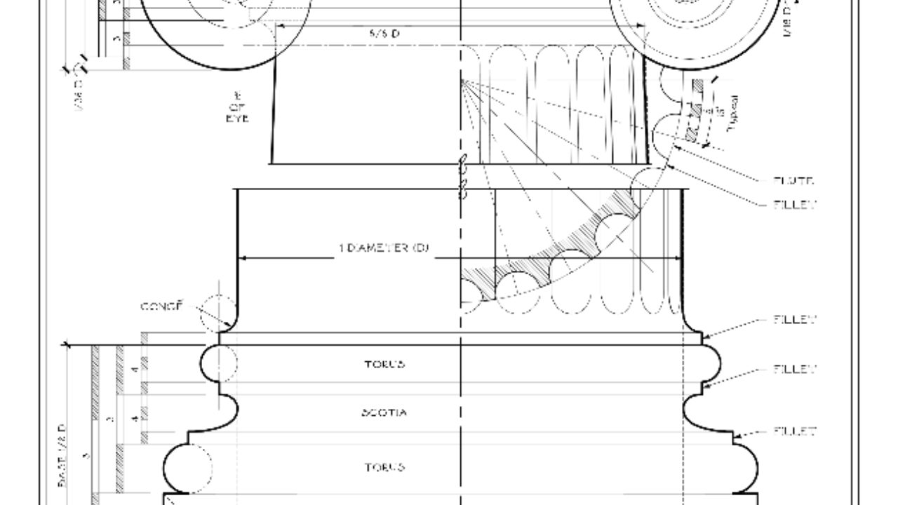
Please join us for an introduction to the Ionic Order, led by ICAA Instructor David Rinehart. This practical hands-on drawing course covers the fourth subject in the Elements of Classical Architecture sequence - the nomenclature, grammar, and proportional relationships of the canonical Ionic order. The course introduces the order through freehand drawing of an Ionic column and entablature. This introduction forms part of a foundation for understanding all of the classical orders from the practitioner’s perspective and lays the groundwork for exploring their use in an architectural composition. An illustrated introduction to the order parallels step by step demonstration by the instructor in drawing the Ionic order. Participants construct drawings of the order in their sketchbook or on paper.
This event is hosted by an ICAA Chapter. Please check the Chapter website or contact the Chapter directly for the most up-to-date details including dates, times, and pricing.
Instructional Delivery Method: Live In-Person Learning Program Program Level: Introductory Prerequisites: None required AIA CES Program Approval Expiration Date: October 10, 2028 Provider Number: G193 Provider Statement: The Institute of Classical Architecture & Art is a registered provider of AIA-approved continuing education under Provider Number G193. All registered AIA CES Providers must comply with the AIA Standards for Continuing Education Programs. Any questions or concerns about this provider or this learning program may be sent to AIA CES ([email protected] or (800) AIA 3837, Option 3).
This learning program is registered with AIA CES for continuing professional education. As such, it does not include content that may be deemed or construed to be an approval or endorsement by the AIA of any material of construction or any method or manner of handling, using, distributing, or dealing in any material or product.
AIA continuing education credit has been reviewed and approved by AIA CES. Learners must complete the entire learning program to receive continuing education credit. AIA continuing education Learning Units earned upon completion of this course will be reported to AIA CES for AIA members. Certificates of Completion for both AIA members and non-AIA members are available upon request.
By the end of this course, participants will:
1. Develop literacy with the terminology and character of the Ionic Order.
2. Draw a block layout of the Ionic Order to explore the proportional relationships of the constituent parts.
3. Complete detailed drawings of an Ionic base, capital and entablature to become familiar with the grammar, geometry and tectonic role of the individual parts.
4. Examine applications and variations of the Ionic type.
Questions regarding the ICAA's courses may be directed via email to [email protected]; via phone to 212-730-9646 ext. 112; or via mail to our National Office at 20 West 44th Street, Suite 310, New York, NY 10036.
To register for a continuing education course hosted by the ICAA National Office, you can use the registration link noted on the program page, email [email protected], or call 212-730-9646 x112. Please also note the ICAA National Office Registration and Cancellation Policy, which you may access by clicking here. ICAA Chapters manage course registration for their own events. While Chapter programs may be listed on classicist.org, you should check the Chapter website, or contact the Chapter directly, for the most up-to-date details including dates, times, pricing, and information on how to register.
The ICAA has a Classroom Code of Conduct in place for all of our educational programs, which can be found by clicking here. Participants in all of our classes (both online and in-person) are expected to follow this code.
The ICAA National Office does not offer recurring continuing education classes on a regular basis, but aims to offer future sessions of classes whose demand exceeded capacity. Core classes are generally offered annually or semi-annually. The frequency of ICAA Chapter courses varies by region.
You can find a list of the ICAA's core curriculum subject areas along with more details about the ICAA Certificate in Classical Architecture program by clicking here. For questions about specific courses that aren’t on this list, please contact [email protected].
Most ICAA continuing education courses are suited to all artistic and academic backgrounds. Seasoned artists and novices alike have enjoyed and improved on their skills in ICAA classes. If a class has any pre-requisites or is recommended for a certain experience level, this will appear on the class listing on the ICAA website. While Chapter courses may be listed on classicist.org, you should check the Chapter website, or contact the Chapter directly, for the most up-to-date details including dates, times, pricing, and pre-requisites.
Health, Safety, and Welfare (HSW) in architecture includes topics that relate to the structural integrity and soundness of a building or a building site. Course content must focus on these topics in order to provide HSW credits. For more information on ICAA classes that have been approved by the AIA for HSW credit, please contact [email protected].
In many cases, you will be able to receive a full or partial refund of your course registration fee. For courses in the New York Region, you may refer to the ICAA's Continuing Education cancellation and refund policy by clicking here.
You may find the ICAA's policies [here]. If you are attending a Chapter program, please contact the Chapter directly for more information on Chapter-specific policies.